|

Farm/
Cattle/
Horse Livestock
Scales

Paul
Livestock
Scales
Portable
Truck Scales


A&D Scales

Click
here for
A&D
balances

Click
here for
A&D
scales

Transcell
Technology
Scales / load cells

Avery
Berkel
Scales

Money Scales

Label
Printing Scales
from $995
Products
Pallet_Scales
Legal
for Trade scales
Used
Scales
Lab
Balances
Bench Scales
Stainless Bench Scales
Stainless
Checkweighers
Stainless
Portion Scales
Counting
Scales
Crane Scales
Floor
/ Drum Scales
Fork Lift
Scales
Indicators
Junction Boxes
Livestock
Scales
Load Cells
Mechanical
Scales
Money Counting
Scales
Postal Scales
Price
Computing/Deli
Printers
Remote
Displays
Shipping
Scales
Truck Scales
Health/Physician/Baby
| |
 
 | Includes one pair of Load Bars and a digital weight
indicator |
 | 15 ft of Indicator cable, 8 ft of cable between load bars |
 | Factory Pre-Calibrated |
 | No sales tax outside New Jersey |
 | Computer / Printer output standard |
 | Portable, Shipping weight is 80 lbs (shippable by UPS) |
 | Choice of two different weight indicators |
 | Optional Hog & Sheep crate |
Optional
Hog & Sheep Crate Kit
|

|

|
|
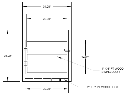
Hog & Sheep crate with two gates
& 30" long bars
Crate is 48" long x 30" wide
Crate kit includes pre-drilled wooden planks and all necessary hardware
|
Photo of wooden deck
with 30" long load bars
|
|

Side View
|

Front View
|
|

|
|
|
SBI
140
Stainless Steel enclosure (not
waterproof)
Runs on batteries (AA batteries) & Electricity
|
TI-500SL
Stainless
Steel waterproof enclosure
Runs on batteries (rechargeable) & electricity
|
Our
animal scales are heavy duty electronic weigh scales, available in 2500, 5000,
or 10000 lb. capacities. They mount easily under any cattle squeeze, hog
crate, feed hopper, or custom platform. The scale system is capable of
1/10 percent accuracy, and has a proven track record with over 20 years of
field use in operating temperatures of -40 to +40 degrees Celcius.
Loadbars are enviromentally coated for outdoor
installation. There are no moving parts to wear out, and no costly
maintenance. A safe overload range of 150% of capacity.
The indicator features large easy to read
digital readout in either pounds (lbs) or kilograms (kgs). It operates
on 120v AC power or an optional Battery operated model. The exclusive
lock-on feature averages the animal's weight, thus eliminating the problem of
animal movement during the weighing process.
The units are calibrated and balanced at the
factory, eliminating the need for an installation technician. Install
the scale, press the Zero button, and you're ready to weigh. This also
allows you to compensate for manure, mud, or snow build-up on the scale
surface.
Each
weight indicator has the following front panel keys: lb/kg, TARE, ZERO, PRINT,
NET/GROSS.
| Dimensions |
Capacity |
SBI-140 |
TI-500SL
|
| 26" long x 5" high |
2,000 lb x 0.2 lb or 2,500 lb x 0.5 |
$1,095 |
$1,195 |
| 36" long x 5" high |
5,000 lb x 1 lb or 5,000 lb x 0.5 |
$1,095 |
$1,195 |
| |
|
|
|
| 48" long x 5" high |
2,000 lb x 0.2 lb or 2,500 lb x 0.5 |
$1,195 |
$1,225 |
| 48" long x 5" high |
5,000 lb x 1 lb or 5,000 lb x 0.5 |
$1,195 |
$1,225 |
| 48" long x 5" high |
10,000
lb x 2 lb or 10,000 lb x 1
|
$1,195 |
$1,225 |
| |
|
|
|
| 60" long x 5" high |
5,000
lb x 1 lb or 5,000 lb x 0.5
|
$1,275 |
$1,365 |
| 60" long x 5" high |
10,000
lb x 2 lb or 10,000 lb x 1
|
$1,275 |
$1,365 |
| 60" long x 5" high |
15,000 lb x 5 lb |
$1,475 |
$1,525 |
| |
Prices below include the load bars & display |
|
|
| Hog & Sheep crate with 30" load bars |
48" long x 30" wide crate
with 5000 lb x 1 lb load bars |
$1350 |
$1550 |
Wooden deck with
30" load bars |
48" long x 30" wide - no crate, just wooden
deck with bars |
$1095 |
$1295 |
Optional Hog & Sheep crate kit comes complete with
pre-drilled holes and hardware
*Custom sizes are no problem
| |

Sensortronics
load cells
Scaime
load
cells
Revere
Transducer
Load cells
BLH
load cells
Click below to
Translate our website into Spanish, Chinese, French, German, Italian, Japanese,
Korean or Portuguese.
Click
Here for translation
|